Handelsgelijkvloers | Tielen

Omschrijving

Polyvalent HANDELSGELIJKVLOERS (245m²) op de MARKT van Tielen, zeer centraal gelegen met veel passage, langs de drukke verbindingsweg van Lichtaart naar Gierle en de E34.

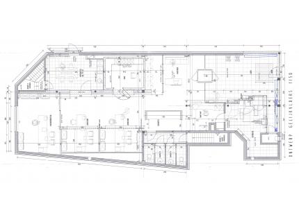
Het voormalig bankkantoor is geschikt voor meerder doeleinden, namelijk: winkelruimte, kantoorruimte, praktijkruimte, … .

De handelsruimte bestaat uit een loket, een wachtruimte en verschillende bureauruimten, achteraan is er een ruimte met kitchenette en een aparte toegang voorzien. Er zijn eveneens gescheiden sanitaire voorzieningen aanwezig.

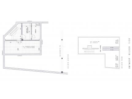
Verder beschikt het eigendom over 2 ruime kelders (89m²) dewelke dienst kunnen doen als opslag of archiefruimte.

Zeer commercieel gelegen op het marktplein van Tielen met op wandelafstand ruim voldoende parkeergelegenheid.

Voor bijkomende informatie of een plaatsbezoek: tel. 014 71 50 08 of info@vastgoedpicavet.be.
Adres:   Tielendorp 23 - 2460 Tielen
Pand op kaartOmgeving pand

Overige info

Afstand tot openbaar vervoer  25 m
Afstand tot winkels  50 m
Instapklaar  ja

Comfort

Keukentype  Geïnstalleerd
Verwarming  Aardgas - Verwarming op aardgas met warme luchtverwarming en airco.
Verwarmingsketel  Individueel
Vloerverwarming  ja
Bevloering  Parket vloerbekleding en tegels.
Dubbelglas  Aluminium ramen met dubbel glas.
Parlofoon  ja
Aansluiting elektriciteit  ja
Meter voor elektriciteit  Individuele meter
Aansluiting riolering  ja
Aansluiting aardgas  ja
Meter voor aardgas  Individuele meter
Aansluiting telefoonlijn  ja
Aansluiting Internet  ja
Aansluiting waterleiding  ja
Meter voor waterleiding  Individuele meter

Geografische ligging

Adres  Tielendorp 23 - 2460 Tielen
Vrij op  bij akte na betaling
Omgeving  Dorp

Bebouwing

Bebouwing  gesloten
Bouwjaar  2000
Renovatiejaar  2012
Bouw oppervlakte  245,15 m²
Aantal gevels  4
Verdieping  2
Aantal wc's  2

Ruimtelijke ordening

Stedenbouwkundige vergunning verkregen    Ja
Optionele informatie    Woongebied
Dagvaardingen uitgebracht    Nee
Voorkooprecht op dit goed    Nee
Verkavelingsvergunning verkregen    Nee
Print deze pagina e-mail deze pagina vraag meer informatie Pand delen