Appartement | Tielen

Omschrijving

Appartement van 129,13m˛, met 3 ruime slaapkamers en groot terras op de eerste verdieping in een modern kleinschalig nieuwbouwproject met 3 appartementen, Residentie EBENORA IV.

Het appartement is ZEER ENERGIEZUINIG.

Het project is gelegen 200 meter van het de markt van Tielen.

Het appartement bestaat uit een grote leefruimte met VEEL LICHTINVAL bestaande uit een zithoek, eethoek en een open keuken met aanpalende wasplaats/ berging.

De woonruimte geeft via een groot schuifraam uit op het terras achteraan.

De nachthal vooraan geeft uit op een apart toilet, drie slaapkamers en de badkamer met lavabomeubel, ligbad en douche.

De koper heeft inspraak in de binnenafwerking; kan zelf de keuken, badkamer en de vloeren kiezen, meer hierover vindt u terug in het lastenboek.

Het appartement wordt zeer kwaliteitsvol afgewerkt met duurdere materialen.

TROEVEN:
•Zeer energiezuinig.
•Veel lichtinval.
•D-ventilatie, geen verluchtingsrooster in de ramen.
•Zonnepanelen per appartement.
•Zeer mooi dakterras.
•Moderne uitstraling.
•Geluidsarme en energiezuinige lift.
•Hoogwaardige afwerking.

Het appartement wordt verkocht met 12% registratierechten op de grondwaarde en 21% Btw op de constructie of 6% btw indien u aan de voorwaarden voldoet. Zie overzicht en prijslijst in bijlage.

Per appartement is een autostaanplaats en grote berging voorzien die de koper verplicht dient aan te kopen.

Er is een gemeenschappelijke fietsenberging en vuilberging.

Indien u meer informatie wenst (prijzen, plannen van de verschillende appartementen, verkooplastenboek,…) of een toelichting bij u thuis of bij ons op kantoor wenst, aarzel dan niet contact op te nemen, tel: 014/715008 of 0496/511010 of mail naar christoffel@vastgoedpicavet.be .
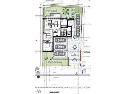
Adres:   Gierlebaan 17, bus 2 - 2460 Tielen
Pand op kaartOmgeving pand

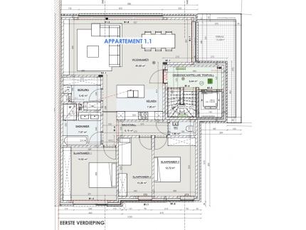
Indeling

Slaapkamer 3  10,26 m˛Kinderkamer met raam, kan ook gebruikt worden als bureauruimte.
Terras  10,43 m˛Groot terras aan de achterzijde, zuidwest georiënteerd met zon vanaf de middag tot avond.

Indeling Verdieping 1

Badkamer 1  7,07 m˛Badkamer met badkamermeubel en mogelijk tot douche en/of ligbad. De koper heeft inspraak in de afwerking.
Berging  5,42 m˛Berging aan palend aan de keuken met aansluiting voor wasmachine en droogkast.
Keuken 1  8,00 m˛Open keuken met keukeneiland, de koper kan zijn eigen keuken samenstellen en heeft inspraak in de afwerking.
Living  40,69 m˛Leefruimte met veel lichtinval dankzij de grote ramen aan de achterzijde. De leefruimte geeft uit op het terras via een groot schuifraam.
Nachthal  6,15 m˛Nachthal met apart toilet, de nachthal geeft uit op de badkamer en de slaapkamers vooraan.
Slaapkamer 1  14,92 m˛Grote slaapkamer met raam aan de voorzijde, de koper kiest zelf de vloerbekleding.
Slaapkamer 2  12,72 m˛Grote slaapkamer aan de voorzijde, koper heeft inspraak in de vloerbekleding.
Wc1  1,86 m˛Apart gastentoilet met handen wasser.

Overige info

Orientatie tuin  ZW
Aantal douches  1
Aantal carports  2
Aantal parkeerplaatsen  5
Afstand tot openbaar vervoer  200 m
Afstand tot winkels  200 m
Afstand tot school  500 m
Instapklaar  ja

Comfort

Keukentype  Geďnstalleerd
Verwarming  Vloerverwarming op basis van een warmtepompsysteem via diepteboring (zorgt ook voor warm water)
Verwarmingsketel  Individueel
Vloerverwarming  ja
Centrale verwarming  ja
Warmtepomp  ja
Bevloering  De koper heeft inspraak in de keuze van de vloeren.
Dubbelglas  Aluminium ramen met dubbele beglazing.
Videofoon  ja
Lift  ja
Aansluiting elektriciteit  ja
Meter voor elektriciteit  Individuele meter
Aansluiting riolering  ja
Aansluiting telefoonlijn  ja
Aansluiting Internet  ja
Aansluiting waterleiding  ja
Meter voor waterleiding  Individuele meter
Waterput  ja

Geografische ligging

Adres  Gierlebaan 17, bus 2 - 2460 Tielen

Bebouwing

Bebouwing  halfopen
Bouwjaar  2023
Nieuwbouw  ja
Grond oppervlakte  407 m˛
Bouw oppervlakte  129,13 m˛
Woonoppervlakte  129,13 m˛
Aantal gevels  3
Verdieping  1 van 3
Aantal slaapkamers  3
Aantal badkamers  1
Aantal wc's  1

Ruimtelijke ordening

Stedenbouwkundige vergunning verkregen    Ja
Optionele informatie    Woongebied
Dagvaardingen uitgebracht    Nee
Voorkooprecht op dit goed    Nee
Verkavelingsvergunning verkregen    Nee
Print deze pagina e-mail deze pagina vraag meer informatie Pand delen