Duplex | Tielen

Omschrijving

REEDS 87,50% VERKOCHT.

Nieuwbouw duplex met 3 slaapkamers en groot zuid gericht terras in blok A van Residentie Opstal, een kleinschalig project in het centrum van Tielen, bestaande uit een blok A met 10 en een blok B met 6 appartementen.

ZEER GROTE duplex (153,00m²) gelegen op de 2de en 3de verdieping aan de achterzijde en bestaande uit een inkomhal die uitgeeft op een grote badkamer met mogelijkheid tot ligbad en douche, een grote slaapkamer en een zeer grote berging met aansluiting voor wasmachine en droogkast, de hal geeft achteraan uit op een leefruimte met veel lichtinval, een open keuken met aanpalende berging, de woonkamer geeft via een schuifraam uit op een groot zuidgericht terras.

Een rechte trap in de woonkamer geeft toegang tot de dakverdieping bestaande uit een twee slaapkamers en een badkamer met jou-ilet, lavabo en douche.

Bovengronds is er een gemeenschappelijke afvalberging en fietsenberging, ondergronds zijn er parkeerplaatsen en kelderbergingen voorzien.

Het project ligt nabij het centrum van Tielen, dichtbij de winkels en het treinstation.

De koper heeft inspraak in de binnen afwerking van het appartement en kan zelf de vloer, keuken, badkamer, … kiezen. Meer info hierover vindt u in de lastenboeken terug.

In het project zijn grote, rolstoelvriendelijke liften voorzien die vanuit de kelder naar elke verdieping gaan.

Ondergronds is per appartement een autostaanplaats en een kelderberging voorzien die de koper dient aan te kopen.

Het appartement wordt verkocht onder de wet Breyne met 10% registratie op de grondwaarde en met 21% Btw op de constructie.

De appartementen worden afgewerkt conform de huidige voorgeschreven energienormen (E-peil max 40) + zijn voorzien van zonnepanelen en zijn zeer energiezuinig.

TROEVEN:
• Zeer energiezuinig: isolatie, geluidsisolatie en zonnepanelen.
• Geluidsarme en energiezuinige liften.
• Veel lichtinval.
• Hoogwaardige afwerking.

NOG SLECHTS 2 TE KOOP, zie overzicht in bijlage.

Indien u meer informatie wenst (prijzen, plannen van de verschillende appartementen, verkooplastenboek,…) of een toelichting bij u thuis of bij ons op kantoor wenst, aarzel dan niet contact op te nemen, tel: 014/715008 of 0496/511010 of mail naar christoffel@vastgoedpicavet.be .
Adres:   Kerkstraat 70, bus 210 - 2460 Tielen
Pand op kaartOmgeving pand

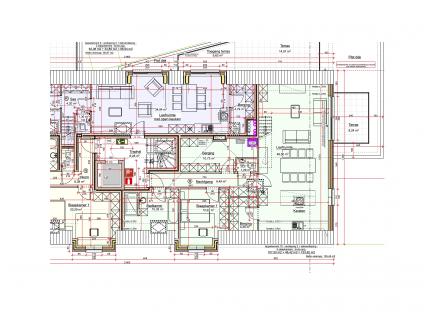
Indeling Verdieping 2

Badkamer 1  10.35 m²De koper heeft inspraak in de afwerking, kiest zelf ligbad en/of douche en badkamermeubel.
Berging  4.35 m²Koele berging ter hoogte van de keuken.
Inkomhal  8.49 m²Nachthal/ inkomhal die uitgeeft de badkamer, apart toilet met handenwasser, slaapkamers, berging en leefruimte achteraan.
Keuken 1  12 m²De koper kan zelf zijn keuken samenstellen, al dan niet met keukeneiland.
Living  48.5 m²Woonruimte met open keuken die via een schuifraam uitgeeft op het terras achteraan. Rechte trap naar de bovenverdieping. Veel lichtinval door grote raampartijen.
Slaapkamer 1  12.22 m²Grote slaapkamer vooraan, de koper kiest zelf de vloer. Rolluiken kunnen mits meerprijs.
Terras  10 m²Terras met tegel vloer en balustrade, zuidgericht met mooi uitzicht over groene omgeving.
Wasberging  10,73 m²Bergruimte / wasplaats met aansluiting wasmachine en droogkast en centrale verwarmingsketel + verluchting.
Wc1  1.29 m²Toilet met handenwasser aanpalend aan de leefruimte.

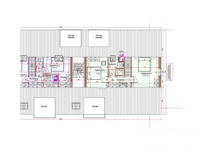
Indeling Verdieping 3

Badkamer 2  5.2 m²Badkamer onder dak, ter hoogte van de 2 slaapkamers onder dak, de koper heeft inspraak in de afwerking hiervan.
Nachthal  5.17 m²Nachthal die uitgeeft op de badkamer en de 2 slaapkamers onder dak.
Slaapkamer 2  16.43 m²Grote slaapkamer onder dak, de koper kiest zelf de vloerbekleding.
Slaapkamer 3  12.9 m²Grote slaapkamer onder dak, de koper kiest zelf de vloerbekleding.
Wc2  1.3 m²Toilet in de nachthal, palend aan de slaapkamers.

Overige info

Tuin  Enkel de gelijkvloerse appartementen beschikken over een privatief tuingedeelte, vooraan is een gemeenschappelijk tuingedeelte.
Aantal parkeerplaatsen  24
Afstand tot openbaar vervoer  100 m
Afstand tot winkels  450 m
Afstand tot school  450 m
Instapklaar  ja

Comfort

Keukentype  Geïnstalleerd
Verwarming  Aardgas - Centrale verwarmingsketel met radiatoren (vloerverwarming is ook mogelijk mits meerprijs).
Verwarmingsketel  Individueel
Centrale verwarming  ja
Zonnepanelen  ja
Bevloering  De koper heeft inspraak in de bevloering (tegels, parket, keramisch parket, kurk, gietvloer, ...)
Dubbelglas  Hoogrendementsbeglazing K1.1
Videofoon  ja
Lift  ja
Aansluiting elektriciteit  ja
Meter voor elektriciteit  Individuele meter
Aansluiting aardgas  ja
Meter voor aardgas  Individuele meter
Aansluiting telefoonlijn  ja
Aansluiting Internet  ja
Aansluiting waterleiding  ja
Meter voor waterleiding  Individuele meter
Waterput  ja

Geografische ligging

Adres  Kerkstraat 70, bus 210 - 2460 Tielen
Vrij op  bij oplevering
Omgeving  Dorp

Bebouwing

Bebouwing  open
Bouwjaar  2019
Nieuwbouw  ja
Bouw oppervlakte  153,92 m²
Elektrisch keuringsattest  ja
E-peil  40
Aantal slaapkamers  3
Aantal badkamers  2
Aantal wc's  2

Ruimtelijke ordening

Stedenbouwkundige vergunning verkregen    Ja
Optionele informatie    Woongebied
Dagvaardingen uitgebracht    Nee
Voorkooprecht op dit goed    Nee
Verkavelingsvergunning verkregen    Nee
Print deze pagina e-mail deze pagina vraag meer informatie Pand delen