Gelijkvloers app. | Dessel

Omschrijving

NIEUWBOUWZONDAG zondag 24 april!
U kan dan tussen 10 en 16 uur een vrijblijvend plaatsbezoek afleggen aan dit project.

Modern kwaliteitsvol BEN-Nieuwbouwproject, (E-peil kleiner dan 20) en 6% BTW mogelijk!

Reeds 30% verkocht!

Zeer energiezuinige KLEINSCHALIGE Residentie “EBENORA III” in het centrum van Dessel, bestaande uit slechts 5 hoogwaardig afgewerkte appartementen met een tuin en/of terras en één penthouse met groot dakterras.

De appartementen worden gebouwd met de NIEUWSTE en BESTE materialen; verlijmde gevelsteen, aluminium ramen, vloerverwarming, balansventilatiesysteem D, warmtepompsysteem, zonnepanelen, energiezuinige lift, akoestische isolatie, … .

Zéér ENERGIEZUINIG gebouwd (kleiner dan E20), waardoor u een vrijstelling geniet van de onroerende voorheffing gedurende 5 jaar.

De appartementen zijn future-proof en worden voorzien van vloerverwarming in combinatie met een WARMTEPOMPSYSTEEM en zonnepanelen. Met dit systeem kan in de zomer ook gekoeld worden!

De appartementen worden AFGEWERKT OP MAAT van uw persoonlijke wensen en behoeften. De koper kan zelf de keuken, badkamer en de vloeren kiezen, meer hierover vindt u terug in het lastenboek.

Een absolute TROEF zijn de enorm RUIME autostaanplaatsen (3 meter breed) en GROTE bergingen, waarvan koper verplicht is één aan te kopen. Bovengronds is achteraan een vuil- en fietsenberging voorzien.

Het project is gelegen 300 meter van het centrum van Dessel.

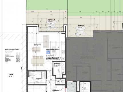
Het betreft een gelijkvloers twee-slaapkamer appartement van 95,28m², met groot terras en tuin. Het appartement bestaat uit een inkomhal met apart toilet en handenwasser, achteraan een ruime leefruimte met veel lichtinval bestaande uit een zithoek, eethoek en een open keuken met aanpalende wasplaats/ berging.

De leefruimte geeft via een groot schuifraam uit op de tuin met groot terras (22,53m²) achteraan.

Verder zijn er vooraan twee slaapkamers en een de badkamer.

Het appartement is ZEER ENERGIEZUINIG, er wordt gestreefd naar een E-peil van E15.

Het appartement kan aangepast worden voor rolstoelgebruikers.

TROEVEN:
•Zeer energiezuinig: minimaal 14 cm isolatie, PUR en akoestische isolatie tussen de appartementen.
•Zeer grote kelderbergingen en ruime autostaanplaatsen.
•D-ventilatie, geen verluchtingsrooster in de ramen.
•Warmtepompsysteem met vloerverwarming.
•Individuele zonnepanelen per appartement.
•Zeer mooi terras met tuin.
•De façadesteen wordt verlijmd, zeer modern uiterlijk.
•Geluidsarme en energiezuinige lift.
•Hoogwaardige afwerking.
•Laadpaal voor elektrische wagen.

Aankopen onder 6% BTW is mogelijk indien u aan de voorwaarden voldoet. Zie overzicht en prijslijst aan 21% BTW en 6% BTW in bijlage.

Indien u meer informatie wenst (prijzen, plannen van de verschillende appartementen, verkooplastenboek,…) of een toelichting bij u thuis of bij ons op kantoor wenst, aarzel dan niet contact op te nemen, tel: 014 71 50 08 of 0496 51 10 10 of mail naar christoffel@vastgoedpicavet.be.
Adres:   Turnhoutsebaan 33, bus 1 - 2480 Dessel
Pand op kaartOmgeving pand

Indeling Gelijkvloers

Badkamer 1  6.72 m²Badkamer met badkamermeubel en mogelijkheid tot douche en/of ligbad. De koper heeft inspraak in de afwerking.
Inkomhal  8.08 m²Inkomhal met mogelijkheid tot vestiaire. Aanpalend is er een apart gastentoilet met handenwasser.
Keuken 1  10 m²Open keuken met keukeneiland deel uitmakend van de woonruimte. De koper heeft inspraak in de afwerking en kan zelf zijn keuken samenstellen.
Living  38.47 m²Leefruimte met zithoek, eethoek en open keuken, de woonruimte geeft via een schuifraam uit op het terras en de tuin.
Slaapkamer 1  12.99 m²Grote slaapkamer met raam, de koper kiest zelf de vloerbekleding.
Slaapkamer 2  7.98 m² Kinderkamer of bureau met raam, de koper kiest zelf de vloerbekleding.
Terras  22.53 m²Aangelegd terras aan de achterzijde.
Wasruimte  5 m²Wasruimte met plaats voor wasmachine/droogkast en verwarmingsketel.
Wc1  1.51 m²Aparte toiletruimte met toilet en handenwasser in de inkomhal.

Overige info

Tuin  Privatieve tuin.
Orientatie tuin  O
Aantal parkeerplaatsen  10
Afstand tot openbaar vervoer  350 m
Afstand tot winkels  75 m
Afstand tot school  650 m
Instapklaar  ja

Comfort

Keukentype  Geïnstalleerd
Verwarming  Vloerverwarming op basis van een zeer energiezuinig warmtepompsysteem via diepteboring, zorgt tevens voor warm water en met dit systeem kan het appartement ook GEKOELD worden in de zomer.
Verwarmingsketel  Individueel
Centrale verwarming  ja
Zonnepanelen  ja
Bevloering  De koper heeft inspraak in de keuze van de vloeren.
Zonneblinden  ja
Dubbelglas  Aluminium ramen met dubbele beglazing.
Videofoon  ja
Lift  ja
Aansluiting elektriciteit  ja
Meter voor elektriciteit  Individuele meter
Aansluiting riolering  ja
Aansluiting aardgas  ja
Meter voor aardgas  Individuele meter
Aansluiting telefoonlijn  ja
Aansluiting Internet  ja
Aansluiting waterleiding  ja
Meter voor waterleiding  Individuele meter
Waterput  ja

Geografische ligging

Adres  Turnhoutsebaan 33, bus 1 - 2480 Dessel
Vrij op  bij oplevering

Bebouwing

Bebouwing  halfopen
Bouwjaar  2021
Nieuwbouw  ja
Grond oppervlakte  1284 m²
Bouw oppervlakte  95,28 m²
Woonoppervlakte  95,28 m²
Aantal gevels  3
Verdieping  0 van 2
Elektrisch keuringsattest  ja
E-peil  15
Aantal slaapkamers  2
Aantal badkamers  1
Aantal wc's  1

Ruimtelijke ordening

Stedenbouwkundige vergunning verkregen    Ja
Optionele informatie    Woongebied
Dagvaardingen uitgebracht    Nee
Voorkooprecht op dit goed    Nee
Verkavelingsvergunning verkregen    Ja
Print deze pagina e-mail deze pagina vraag meer informatie Pand delen