Duplex | Tielen
Omschrijving
Mooi recent duplex appartement (bwj 2018) met 2 slaapkamers (120mē) en terras nabij het centrum van Tielen.Het appartement maakt deel uit van een mooi kleinschalig project met 4 appartementen.
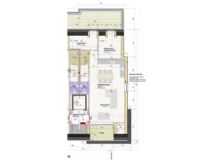
Indeling: Grote leefruimte bestaande uit een zithoek met aanpalend terras, een eethoek en een volledig ingerichte open keuken met pompsteen, afzuigkap, fornuis, vaatwasser, inbouwijskast, oven en voldoende kastruimte. Verder is er aanpalend een slaapkamer met ingemaakte kasten en een ruime berging met aansluiting voor wasmachine en droogkast.
Boven is er een master bedroom met ingemaakte kastenwand en een ruime badkamer met dubbel lavabomeubel, handdoekdroger en grote inloopdouche.
Het project is gelegen nabij het centrum van Tielen op wandelafstand van de bakker, de supermarkt (400m) en het treinstation (500m).
Gelijkvloers is een zeer ruime overdekte parkeerplaats voorzien en een berging.
Troeven:
Energiezuinig.
Instapklaar.
Ruime woonkamer met veel lichtinval.
Indien u meer informatie wenst of een plaatsbezoek, aarzel dan niet contact op te nemen: tel. 0496 51.10.10 of christoffel@vastgoedpicavet.be .
Pand op kaartOmgeving pand
|
Indeling Gelijkvloers | ||
|---|---|---|
| Garage | 13,25 mē | Overdekte autostaanplaats. |
|
Indeling Verdieping 2 | ||
| Cv ruimte | 0,68 mē | Centrale verwarmingsruimte. |
| Keuken 1 | 8 mē | Open keuken, die deel uitmaakt van de woonkamer. Volledig ingericht met pompsteen, afzuigkap, fornuis, vaatwasser, inbouwijskast, oven en voldoende kastruimte. |
| Living | 41,87 mē | Ruime woonkamer met zithoek, eethoek en open keuken, de living geeft via een schuifraam uit op het dakterras vooraan. |
| Slaapkamer 1 | 8,13 mē | Slaapkamer of bureauruimte met ingemaakte kasten. |
| Terras | 8 mē | Dakterras aan de straatzijde. |
| Wasruimte | 5,14 mē | Een ruime berging met aansluiting voor wasmachine en droogkast |
| Wc1 | 1,63 mē | Toiletruimte aanpalend aan de woonkamer. |
|
Indeling Verdieping 3 | ||
| Badkamer 1 | 10,63 mē | Badkamer met badkamermeubel (dubbele lavabo), toilet en grote inloopdouche + handdoekdroger. |
| Slaapkamer 2 | 13,24 mē | Grote slaapkamer onder dak met aanpalende badkamer. Voorzien van een ingemaakte kastenwand. |
| Wc2 | 1 mē | Tweede toilet is voorzien in de badkamer boven. |
Overige info
| Tuin | ja |
| Orientatie tuin | Z |
| Aantal parkeerplaatsen | 6 |
| Afstand tot openbaar vervoer | 400 m |
| Afstand tot winkels | 300 m |
| Afstand tot school | 400 m |
Comfort
| Keukentype | Geïnstalleerd |
| Verwarming | Aardgas - Condensatieketel op aardgas met vloerverwarming. |
| Verwarmingsketel | Individueel |
| Centrale verwarming | ja |
| Bevloering | Keramische parket en tegels. |
| Dubbelglas | ja |
| Videofoon | ja |
| Lift | ja |
| Aansluiting elektriciteit | ja |
| Meter voor elektriciteit | Individuele meter |
| Aansluiting riolering | ja |
| Aansluiting aardgas | ja |
| Meter voor aardgas | Individuele meter |
| Aansluiting telefoonlijn | ja |
| Aansluiting Internet | ja |
| Aansluiting waterleiding | ja |
| Meter voor waterleiding | Individuele meter |
| Waterput | ja |
Geografische ligging
| Adres | Kerkstraat 72, bus 4 - 2460 Tielen |
| Vrij op | overeen te komen |
| Omgeving | Dorp |
Bebouwing
| Bebouwing | halfopen |
| Bouwjaar | 2018 |
| Nieuwbouw | ja |
| Bouw oppervlakte | 120 mē |
| Woonoppervlakte | 110 mē |
| Verdieping | 2 van 3 |
| Zijgrenslinks | 1m |
| Zijgrensrechts | 3m |
| EPC waarde kWh/mē per jaar | 60,54 kWh/mē |
| EPC Certificaatnummer | 13017-G-2016-4440/EP10894/A001/D01/SD005 |
| Aantal slaapkamers | 2 |
| Aantal badkamers | 1 |
| Aantal wc's | 1 |
Ruimtelijke ordening
60,54

epc waarde: