Appartement | Kasterlee

Omschrijving

Luxueus appartement met 2 slaapkamers op de eerste verdieping met dakterras en garage in het centrum van Kasterlee.

Het appartement maakt deel uit van een kleinschalig nieuwbouwproject op wandelafstand van het centrum, de winkels, het openbaar vervoer en de scholen.

Het appartement (110mē) bestaat uit een inkomhal met afgesloten toilet die uitgeeft op een zeer ruime woonkamer met open keuken. De keuken is volledig ingericht en hoogwaardig afgewerkt (inductie fornuis, inbouwijskast, vaatwasser, oven, …) en is voorzien van een aparte diepvrieskast.

De woonruimte geeft via een schuifraam uit op het dakterras (19mē) achteraan dat georiënteerd is naar het zuidoosten.

Vooraan zijn er 2 ruime slaapkamers en een zeer ruime badkamer met dubbele lavabo, ligbad en douche.

Verder is er een grote wasruimte/berging met aansluiting voor wasmachine en droogkast.

In de huurprijs is een individuele garage voorzien, deze bevindt zich achteraan en een gemeenschappelijke berging.

Niet onbelangrijk: er is een lift en de slaapkamers zijn voorzien van rolluiken. Verder is er een zonneboiler voorzien en zijn de toiletten aangesloten op het regenwatersysteem.

Het appartement is duurzaam en hoogwaardig afgewerkt. Ze zijn erg energiezuinig, het E-peil bedraagt 49.

Indien u meer informatie wenst of een plaatsbezoek, contacteer ons via tel. 014 71 50 08 of e-mail: christoffel@vastgoedpicavet.be .
Adres:   Monseigneur Heylenstraat 19 - 2460 Kasterlee
Pand op kaartOmgeving pand

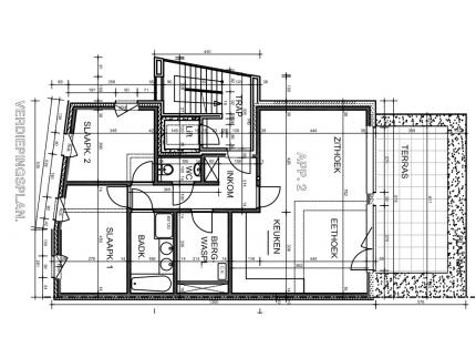
Indeling Verdieping 1

Badkamer 1  6,00 mēGrote badkamer met dubbele lavabo, ligbad en inloopdouche.
Berging  7,19 mēZeer ruime wasruimte/berging met voorzieningen voor wasmachine en droogkast. Zie wasruimte.
Inkomhal  7,66 mēZeer ruime inkomhal die uitgeeft op het woon- en slaapgedeelte.
Keuken 1  10,86 mēLuxueuze keuken voorzien van voldoende bergruimte, inductie fornuis, oven, vaatwasser, inbouwijskast.
Living  33,85 mēZeer ruime woonkamer die via een schuifraam uitgeeft op het terras en de tuin achteraan.
Slaapkamer 1  12,50 mēGrote slaapkamer aan de voorzijde, de ramen zijn voorzien van rolluiken.
Slaapkamer 2  10,00 mēSlaapkamer aan de voorzijde, de ramen zijn voorzien van rolluiken.
Terras  18,33 mēRuim terras achteraan.
Wasruimte  7,19 mēZeer ruime wasruimte/berging met voorzieningen voor wasmachine en droogkast. Zie berging.
Wc1  1,80 mēToilet met handenwasser.

Overige info

Orientatie tuin  ZO
Aantal douches  1
Aantal garages  1
Aantal parkeerplaatsen  2
Afstand tot openbaar vervoer  200 m
Afstand tot winkels  150 m
Afstand tot school  50 m

Comfort

Keukentype  Geïnstalleerd
Verwarming  Aardgas - Hoge rendementsketel op aardgas.
Verwarmingsketel  Individueel
Centrale verwarming  ja
Zonneboiler  ja
Bevloering  Stenen tegels 60cm x 60cm.
Rolluiken  De slaapkamers vooraan zijn voorzien van rolluiken.
Dubbelglas  Aluminium ramen met dubbel hoge rendementsglas.
Videofoon  ja
Lift  ja
Aangepast voor mindervalide  ja
Aansluiting elektriciteit  ja
Meter voor elektriciteit  Individuele meter
Aansluiting aardgas  ja
Meter voor aardgas  Individuele meter
Aansluiting telefoonlijn  ja
Aansluiting Internet  ja
Aansluiting waterleiding  ja
Meter voor waterleiding  Individuele meter
Waterput  ja

Geografische ligging

Adres  Monseigneur Heylenstraat 19 - 2460 Kasterlee
Vrij op  onmiddellijk
Omgeving  Dorp

Bebouwing

Bebouwing  open
Bouwjaar  2016
Nieuwbouw  ja
Grond oppervlakte  119 mē
Bouw oppervlakte  119 mē
Woonoppervlakte  110 mē
Gevelbreedte  8,20 m
Aantal gevels  4
Verdieping  1 van 3
Diepte gelijkvloers  17,25m
E-peil  49
Aantal slaapkamers  2
Aantal badkamers  1
Aantal wc's  1

Ruimtelijke ordening

Stedenbouwkundige vergunning verkregen    Ja
Optionele informatie    Woongebied
Dagvaardingen uitgebracht    Nee
Voorkooprecht op dit goed    Nee
Verkavelingsvergunning verkregen    Nee

Downloads

    Plan_1ste_verdiep.pdf
Print deze pagina e-mail deze pagina vraag meer informatie Pand delen