Gelijkvloers app. | Retie

Omschrijving

LUXUEUS gelijkvloers BEN-APPARTEMENT (109 m²), met 2 slpks, groot terras en tuin.

Ontdek dit prachtige appartement in een exclusieve, kleinschalige residentie “Ebenora 7” in Retie. Hier komen moderne architectuur, comfort en duurzaamheid perfect samen. De zes luxueuze appartementen zijn ontworpen met oog voor detail en uitgerust met grote raampartijen die een zee van natuurlijk licht binnenlaten. Geniet van een doordachte indeling, stijlvolle afwerking en maximaal wooncomfort met mooie volumes, allemaal volgens de hoogste kwaliteits- en energienormen. Een unieke kans om te wonen op een toplocatie!

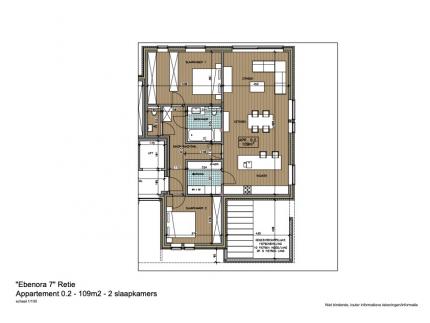
Het gelijkvloers appartement 0.2 bestaat uit een ruime inkomhal met apart gastentoilet en geeft achteraan uit op een master bedroom en badkamer die de koper naar wens kan inrichten met ligbad/douche, lavabo en toilet. Vooraan is er een 2de ruime slaapkamer. Vanuit de inkomhal komt men in een ruime leefruimte (44,35 m²) met veel lichtinval dankzij grote raampartijen en plaats voor een open keuken met aanpalende berging, zit- en eethoek. De leefruimte geeft via een schuifraam achteraan uit op een zeer groot terras (30 m²) en tuin (75 m²) met tuinberging.

De appartementen worden gebouwd met hoogwaardige, duurzame materialen en moderne technieken die garant staan voor maximaal wooncomfort én een zeer energiezuinig E-peil. Zo geniet u van aluminium ramen, een ventilatiesysteem D, individuele zonnepanelen per appartement, vloerverwarming en een geothermisch warmtepompsysteem dat niet alleen verwarmt, maar in de zomer ook voor aangename koeling zorgt. Ook de lift is energiezuinig en geluidsarm.

Als koper heeft u ruime inspraak in de afwerking: keuken, badkamer, vloerbekleding… . U kiest zelf de materialen en stijlen die bij u passen, alle details en budgetten vindt u terug in het lastenboek.

Toplocatie: het project bevindt zich op slechts 500 meter van de markt van Retie, dichtbij winkels, scholen en alle voorzieningen en toch vlakbij de op- en afrit van de E34.

Troeven:
•Mooie volumes: grote leefruimte en grote slaapkamers.
•Zeer energiezuinig: geothermische warmtepomp met vloerverwarming én koeling
•Individuele zonnepanelen
•Geluidsarme, energiezuinige lift
•Veel natuurlijk licht dankzij grote raampartijen
•Laadpaalvoorzieningen

De opgegeven prijs is zonder kosten (BTW op de constructie, registratierechten op het grondaandeel en aankoopkosten).

Per appartement is een ondergrondse autostaanplaats en kelderberging voorzien die de koper verplicht dient aan te kopen.

Er is een gemeenschappelijke fietsenberging en vuilberging.

Indien u meer informatie wenst (prijzen, plannen van de verschillende appartementen, verkooplastenboek,…) of extra toelichting wil, aarzel dan niet contact op te nemen, tel. 014 71 50 08 of 0496 51 10 10 of mail naar christoffel@vastgoedpicavet.be

Adres:   Kerkhofstraat 63, bus 0.2 - 2470 Retie
Pand op kaartOmgeving pand

Indeling Gelijkvloers

Badkamer 1  5,33 m²Badkamer met badkamermeubel, toilet en mogelijkheid tot inloopdouche of ligbad. De koper heeft inspraak en kan deze zelf samenstellen.
Berging  5,07 m²Bergruimte ter hoogte van de keuken met aansluiting voor wasmachine en droogkast.
Inkomhal  10,38 m²Inkomhal met apart toilet met handenwasser, de inkomhal geeft uit op de badkamer, de 2 slaapkamers en de leefruimte.
Keuken 1  12,00 m²Open keuken, deel uitmakend van de leefruimte, de koper heeft inspraak in de afwerking en kan de keuken zelf samenstellen.
Living  44,35 m²Leefruimte met veel lichtinval dankzij de vele raampartijen. De leefruimte bestaat uit een open keuken met eet- en zithoek. De leefruimte geeft via een schuifraam uit op het terras en de privatieve tuin achteraan.
Slaapkamer 1  18,34 m²Zeer grote volwaardige slaapkamer met mogelijkheid tot een dressing, de koper heeft inspraak en kiest zelf de vloerbekleding.
Slaapkamer 2  12,35 m²Grote volwaardige slaapkamer met plaats voor een dubbel bed, de koper heeft inspraak en kiest zelf de vloerbekleding.
Terras  30,00 m²Ter hoogte van de keuken en eethoek is er een groot terras en tuin bereikbaar via een groot schuifraam.
Wc1  1,84 m²Gastentoilet met handenwasser in de inkomhal.

Overige info

Tuin  Achteraan is er ter hoogte van het appartement een terras voorzien en een privatieve tuin voorzien van 185 m² met tuinhuis (10 m²).
Orientatie tuin  W
Afstand tot openbaar vervoer  50 m
Afstand tot winkels  500 m
Afstand tot school  500 m
Instapklaar  ja

Comfort

Keukentype  Hyper-Geïnstalleerd
Verwarming  Zeer energiezuinig: geothermische warmtepomp (diepteboring) met vloerverwarming én koeling
Vloerverwarming  ja
Warmtepomp  ja
Bevloering  De koper heeft inspraak in de keuze van de vloeren.
Videofoon  ja
Lift  ja
Aansluiting elektriciteit  ja
Meter voor elektriciteit  Individuele meter
Aansluiting riolering  ja
Septische put  ja
Aansluiting telefoonlijn  ja
Aansluiting Internet  ja
Aansluiting waterleiding  ja
Meter voor waterleiding  Individuele meter
Waterput  ja

Geografische ligging

Adres  Kerkhofstraat 63, bus 0.2 - 2470 Retie
Vrij op  bij oplevering

Financiële info

Prijs  350.000 EUR

Voor een uitgebreide berekening van de registratie-rechten en erelonen, kijk op www.notaris.be.

Bebouwing

Bouwjaar  2025
Grond oppervlakte  1352 m²
Bouw oppervlakte  109 m²
Woonoppervlakte  109 m²
Aantal slaapkamers  2
Aantal badkamers  1
Aantal wc's  2

Ruimtelijke ordening

Stedenbouwkundige vergunning verkregen    Ja
Optionele informatie    Woongebied
Dagvaardingen uitgebracht    Nee
Voorkooprecht op dit goed    Nee
Verkavelingsvergunning verkregen    Nee
Print deze pagina e-mail deze pagina vraag meer informatie Pand delen